6 4

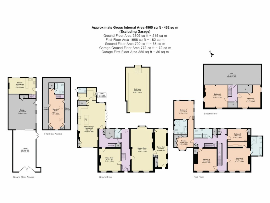
6 bed House - For Sale
Preston Crowmarsh, Wallingford, OX10
Guide Price £2,700,000

  • Grade II Listed Village House
  • Principal and Guest Suites
  • Four further bedrooms
  • Three reception rooms
  • Guest Annexe
  • Boathouse, tennis court and heated pool
  • Formal gardens, paddock and woodland
Quintessential period residence with waterside meadow, private boathouse, guest annexe, landscaped gardens, heated pool, tennis court and private woodland walk. In all about 5.5 acres.

The Old Mill House is a truly outstanding period family house, standing in a beautiful position overlooking its own waterside meadow garden with a private boathouse.

With origins dating back to the William & Mary period of the 17th Century, the house retains much of the splendour of the original architecture, with accommodation arranged over three floors. A central hall with stone floor and elegant landings connects all the principal rooms. The large windows throughout the house provide every room with a beautiful atmosphere and outlook.

A major scheme of refurbishment and remodelling was completed in 2020, creating a beautiful kitchen/family room with underfloor heating and a new first floor principal suite and family bathroom which, combined with the original rooms, has created a stylish house that embraces modernity whilst maintaining the beautiful classic feel throughout the house.

There is a separate split level guest / staff annexe with a lovely open plan living room and kitchen and, upstairs, a large bedroom suite. There is a generous garage and workshop (ideal for motor car enthusiasts) with covered hardstanding outside and a gardener’s w/c.

An outstanding feature of The Old Mill House are the grounds. Stepping out from the kitchen and the hallway onto a beautiful flagstone terrace giving way to sweeping lawns interspersed with a variety of specimen trees, there is a tranquil sunken garden and numerous places to sit and take in the grounds. Beyond the formal garden is the kitchen garden with the greenhouse and store. The paddock leads to a private area of woodland which has been curated to give a beautiful circular walk. Behind a walled section is the covered heated swimming pool with retractable roof and the tennis court.

The Old Mill House looks over its private river garden, creating a serene setting, with its own “wet” boathouse onto the mill stream which flows out onto a beautiful stretch of the Thames, down stream towards Wallingford, Streatley and Pangbourne or upstream towards Dorchester-on-Thames and Oxford.

Location

The Old Mill House stands in the heart of the hamlet, Preston Crowmarsh, close to Benson Lock on The River Thames, 1 mile upstream from the market town of Wallingford, served by a thriving town centre including a Waitrose supermarket. The larger centres of Oxford and Reading are easily accessible by road or river. There are a number of outstanding schools locally including The Oratory School, Abingdon School, Moulsford, Cranford House and the Oxford schools, which collect from the end of the lane.

The area is well served for rail links to London from nearby Cholsey or Didcot station connecting with The Elizabeth Line at Reading.

Floorplans For Preston Crowmarsh, Wallingford, OX10
Arrange a viewing for Preston Crowmarsh, Wallingford, OX10

For further details on this property please call us on:
01491 614000

Arrange Viewing